Verkocht:Middelstegracht 159, 2312 TV Leiden - Foto
Verkocht
+70

Middelstegracht 159 2312 TV Leiden

  • Woonhuis
  • 4 kamers
  • 3 slaapkamers
  • 2 badkamers
  • Bouwjaar 1750
  • 61 m² perceeloppervlakte
  • 116 m² gebruiksoppervlakte
  • C Energielabel C

Beschrijving

Wonen in het bruisende hart van Leiden? Dat kan in deze verrassend ruime en sfeervolle tussenwoning met een charmante stadstuin, gelegen op een toplocatie aan de Middelstegracht. De woning combineert een moderne afwerking met karaktervolle details en biedt dankzij de royale leefruimtes, drie slaapkamers, twee badkamers én een uitbouw met lichtstraat alle comfort die je zoekt. De woning is bovendien uitstekend onderhouden en instapklaar.
Centrumleven op zijn best.

Stap de deur uit en geniet van alles wat Leiden te bieden heeft: gezellige terrassen, musea, winkels, supermarkten, het Plantsoen, de Hortus Botanicus – allemaal op loopafstand. Binnen tien minuten sta je op station Leiden Centraal en met de nabijgelegen uitvalswegen A4 en A44 ben je zo in Den Haag, Haarlem of Amsterdam.

Indeling

Begane grond:

Via de ruime entree met meterkast kom je in de royale en uitgebouwde woonkamer. De open keuken is modern en luxe uitgevoerd met o.a. een 6-pits gaskookplaat, oven, afzuigkap, koelkast, vriezer, vaatwasser, composieten werkblad en vloerverwarming. Vanuit de keuken is er toegang tot de stadstuin op het oosten, momenteel in open verbinding met de tuin van Uiterstegracht 182. Indien gewenst kan deze tuin weer tot een volledig privéperceel worden gemaakt. De kadastrale procedure hiervoor is in gang gezet.

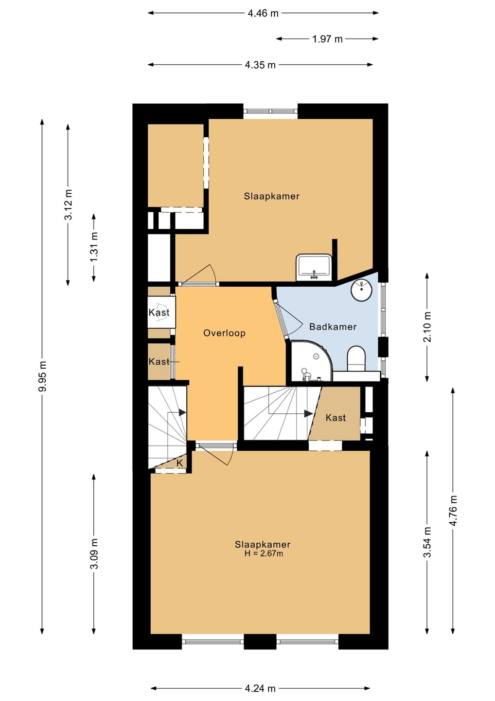
Eerste verdieping:

Via de trap bereik je de overloop met een aparte ruimte voor de wasmachine en droger. Op deze verdieping bevinden zich twee royale slaapkamers van ca. 13,5 m² en 15 m², beide met een plafondhoogte van 2,67 meter, wat zorgt voor een ruimtelijk gevoel. De eerste badkamer is praktisch ingericht met een douche, toilet en wastafelmeubel.

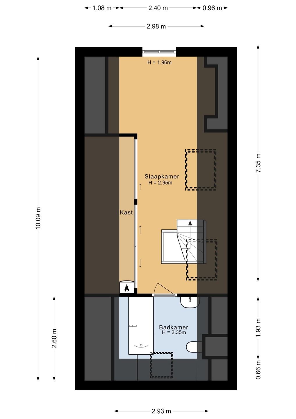
Tweede verdieping:

De tweede verdieping herbergt een ruime master bedroom van maar liefst 22 m², voorzien van een vaste kastenwand en een eigen luxe badkamer en suite met een ligbad, inloopdouche, hangend closet en modern wastafelmeubel. Tevens is hier de CV-opstelling (Remeha Calenta, 2023) geplaatst. Op het dak liggen nog 7 zonnepanelen.

LET OP! Kadastrale afmetingen zijn indicatief en worden opnieuw vastgelegd bij de gemeente via het kadaster. Indien gewenst kan de woning met de Uiterstegracht 182 samen worden gekocht, ideaal voor gezinnen met mantelzorg, werkplek aan huis of extra woonruimte voor een familielid of eventueel verhuur.

Bijzonderheden

• Gelegen in het historisch centrum van Leiden
• Woonoppervlak ca. 116 m²
• Bouwjaar: ca. 1750
• 3 ruime slaapkamers
• 2 badkamers
• Uitgebouwde woonkamer met lichtstraat
• Moderne open keuken met luxe inbouwapparatuur
• Vloerverwarming in de keuken
• CV-ketel Remeha Calenta (2023)
• Charmante stadstuin op het oosten
• Mogelijkheid tot afsluiten van open tuinsituatie (aanvraag Kadaster loopt)
• Op loopafstand van winkels, horeca, musea, parken en openbaar vervoer
• Goede verbinding met uitvalswegen richting Den Haag, Amsterdam en Rotterdam
• Parkeren via vergunningenstelsel (gemeente Leiden)

Kaart

Kenmerken

Overdracht

Referentienummer
00025
Vraagprijs
€ 625.000,- k.k.
Status
Verkocht
Aanvaarding
In overleg
Aangeboden sinds
Vrijdag 30 mei 2025
Laatste wijziging
Vrijdag 4 juli 2025

Bouw

Type object
Woonhuis, eengezinswoning, tussenwoning
Soort bouw
Bestaande bouw
Bouwperiode
1750
Dakbedekking
Dakpannen
Type dak
Zadeldak
Keurmerken
Energie prestatie advies
Isolatievormen
Grotendeels dubbel glas
Muurisolatie

Oppervlaktes en inhoud

Perceeloppervlakte
61 m²
Woonoppervlakte
116 m²
Woonkameroppervlakte
19,12 m²
Inhoud
453 m³
Oppervlakte overige inpandige ruimten
0,78 m²

Indeling

Aantal bouwlagen
3
Aantal kamers
4 (waarvan 3 slaapkamers)
Aantal badkamers
2

Tuin

Type
Achtertuin
Hoofdtuin
Ja
Oriëntering
Oosten
Staat
Normaal

Energieverbruik

Energielabel
C

CV ketel

CV ketel
Remeha
Warmtebron
Gas
Bouwjaar
2023
Combiketel
Ja
Eigendom
Eigendom

Uitrusting

Warm water
CV-ketel
Verwarmingssysteem
Centrale verwarming
Ventilatie methode
Natuurlijke ventilatie
Keukenvoorzieningen
Inbouwapparatuur
Badkamervoorzieningen Badkamer 1
Douche
Toilet
Wastafel
Badkamervoorzieningen Badkamer 2
Ligbad
Toilet
Wastafel
Tuin aanwezig
Ja
Heeft een dakraam
Ja
Heeft zonnepanelen
Ja

Kadastrale gegevens

Kadastrale aanduiding
Leiden I 61
Perceeloppervlakte
61 m²
Eigendomsituatie
Eigen grond