Verkocht onder voorbehoud:Marelaan 33, 2341 LB Oegstgeest - Foto
Verkocht onder voorbehoud
+40

Marelaan 33 2341 LB Oegstgeest € 750.000,- k.k.

  • Woonhuis
  • 5 kamers
  • 4 slaapkamers
  • 1 badkamer
  • Bouwjaar 1951
  • 208 m² perceeloppervlakte
  • 137 m² gebruiksoppervlakte
  • C Energielabel C

Beschrijving

Aan een van de meest geliefde lanen van Oegstgeest, direct grenzend aan de sfeervolle oude dorpskern, ligt deze karaktervolle en uitgebouwde tussenwoning met diepe tuin op een perceel van maar liefst 208 m². Een woning met de charme van de jaren ’50, ruim van opzet en ideaal voor gezinnen die op zoek zijn naar rust, ruimte en een centrale ligging.

De ligging is uniek: een brede, groene en rustige laan met voldoende parkeergelegenheid, brede stoepen en een prettige woonomgeving. Zowel winkelcentrum Lange Voort als de levendige De Kempenaerstraat liggen op loopafstand. Sportclubs, scholen, het park De Leidse Hout, station Leiden Centraal en zelfs het strand zijn eenvoudig bereikbaar.

Indeling

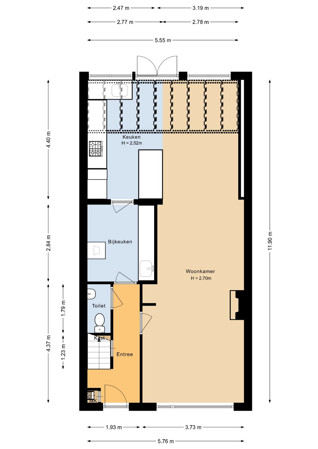
Begane grond Ruime entree met betegelde vloer, vernieuwde meterkast, verdiepte trapkast en toilet met fontein. De sfeervolle, uitgebouwde woonkamer (met lichtstraat) beschikt over een fraaie parketvloer en een ingebouwde houtkachel met schouw. Aansluitend is een ruime woon-leefkeuken met veel lichtinval door de vele ramen met uitzicht op de tuin en een gedeeltelijk glazen dak/serre. Ook is er toegang tot de zonnige achtertuin via openslaande dubbele deuren. Deze ruimte vormt het hart van het huis, een echte eyecatcher waar koken, eten en samenzijn perfect samenkomen. Aansluitend bevindt zich een ruime pantry/bijkeuken, die op praktische wijze is ingericht en voorzien van een aansluiting voor zowel wasmachine als droger. Deze ruimte biedt daarnaast extra opbergruimte voor voorraad of keukenapparatuur.

Tuin De diepe achtertuin biedt volop privacy en kent op elk moment van de dag een zonnig plekje. Dankzij de royale diepte geniet je al vanaf het vroege voorjaar tot ver in de herfst van de zon en het buitenleven. Achterin de tuin bevindt zich een ruime, goed geïsoleerde en goed verlichte multifunctionele ruimte over de volle breedte van het perceel (24m2) en voorzien van een groen dak; ideaal te gebruiken als kantoor, praktijkruimte of gastenverblijf en voorzien van een eigen ingang via de achterom. Ook de ruime voortuin op het zuiden biedt een heerlijke plek om in alle rust van de zon te genieten.

Eerste verdieping De eerste verdieping is praktisch ingedeeld. De overloop biedt toegang tot een gangkast en drie lichte en sfeervolle slaapkamers, waarvan twee ruime slaapkamers beschikken over handige ingebouwde kastruimte die zorgen voor extra bergruimte. De derde, kleinere kamer aan de achterzijde leent zich uitstekend als kinderslaapkamer, thuiswerkplek, hobbyruimte of kleedkamer.

De moderne badkamer, aan de voorzijde gelegen, is voorzien van een inloopdouche, een wastafelmeubel en een tweede toilet. Dankzij het raam valt er prettig daglicht binnen en is er natuurlijke ventilatie aanwezig, wat zorgt voor een frisse en comfortabele ruimte.

Tweede verdieping De tweede verdieping is verrassend ruim en vormt een volwaardige extra woonlaag. De overloop is voorzien van een dakraam waardoor er prettig daglicht binnenvalt, en biedt toegang tot diverse bergruimtes en de opstelplaats van de cv-ketel (Intergas, 2024).

De vierde slaapkamer is royaal van formaat en dankzij de dakkapellen aan zowel de voor- als achterzijde uitzonderlijk licht en ruimtelijk. Hier is voldoende plaats voor een groot bed, een werkhoek of zelfs een extra zithoek. Achter de knieschotten bevindt zich bovendien praktische bergruimte.

De zolderslaapkamer is voorzien van een en-suite ligbad, wastafelmeubel en handdoekradiator, waardoor deze verdieping uitstekend dienst kan doen als zelfstandige ouder- of logeeretage en zorgt voor extra comfort en privacy.

Bijzonderheden

· Bouwjaar 1951
· Woonoppervlakte ca. 137 m²
· Perceeloppervlakte 208 m²
· Uitgebouwde en zeer lichte woonkamer
· Energielabel C
- Schilderwerk buiten en binnenzijde 2026
· Gelegen aan één van de gewildste lanen van Oegstgeest
· Verwarming en warm water via cv-combiketel (Intergas 2024)
· Multifunctionele goed geïsoleerde ruimte in de tuin van ca21,5 m2
· Oplevering in overleg

Kaart

Kenmerken

Overdracht

Referentienummer
00046
Vraagprijs
€ 750.000,- k.k.
Inrichting
Niet gestoffeerd
Inrichting
Niet gemeubileerd
Status
Verkocht onder voorbehoud
Aanvaarding
In overleg
Aangeboden sinds
Dinsdag 10 maart 2026
Laatste wijziging
Vrijdag 10 april 2026

Bouw

Type object
Woonhuis, eengezinswoning, tussenwoning
Soort bouw
Bestaande bouw
Bouwperiode
1951
Dakbedekking
Dakpannen
Type dak
Zadeldak
Keurmerken
Energie prestatie advies
Isolatievormen
Dakisolatie
Dubbel glas

Oppervlaktes en inhoud

Perceeloppervlakte
208 m²
Woonoppervlakte
137 m²
Woonkameroppervlakte
44,39 m²
Keukenoppervlakte
12,19 m²
Inhoud
537 m³
Oppervlakte externe bergruimte
21 m²

Indeling

Aantal bouwlagen
3
Aantal kamers
5 (waarvan 4 slaapkamers)
Aantal badkamers
1 (en 1 apart toilet)

Tuin

Type
Achtertuin
Hoofdtuin
Ja
Oriëntering
Noorden
Staat
Normaal
Tuin 2 - Type
Voortuin
Tuin 2 - Oriëntering
Zuiden
Tuin 2 - Staat
Normaal

Energieverbruik

Energielabel
C

CV ketel

CV ketel
Intergas
Warmtebron
Gas
Bouwjaar
2024
Combiketel
Ja
Eigendom
Eigendom

Uitrusting

Warm water
CV-ketel
Verwarmingssysteem
Centrale verwarming
Open haard
Ventilatie methode
Natuurlijke ventilatie
Keukenvoorzieningen
Inbouwapparatuur
Badkamervoorzieningen
Inloopdouche
Toilet
Wastafelmeubel
Heeft een open haard
Ja
Heeft een rookkanaal
Ja
Tuin aanwezig
Ja
Beschikt over een internetverbinding
Ja
Heeft schuur/berging
Ja

Kadastrale gegevens

Kadastrale aanduiding
Oegstgeest C 33
Perceeloppervlakte
208 m²
Eigendomsituatie
Eigen grond